

$429,900
Sold
1300 Islington Ave Ste 403, m9a5c4
House
1300
square feet
2
beds
2
baths
About this property
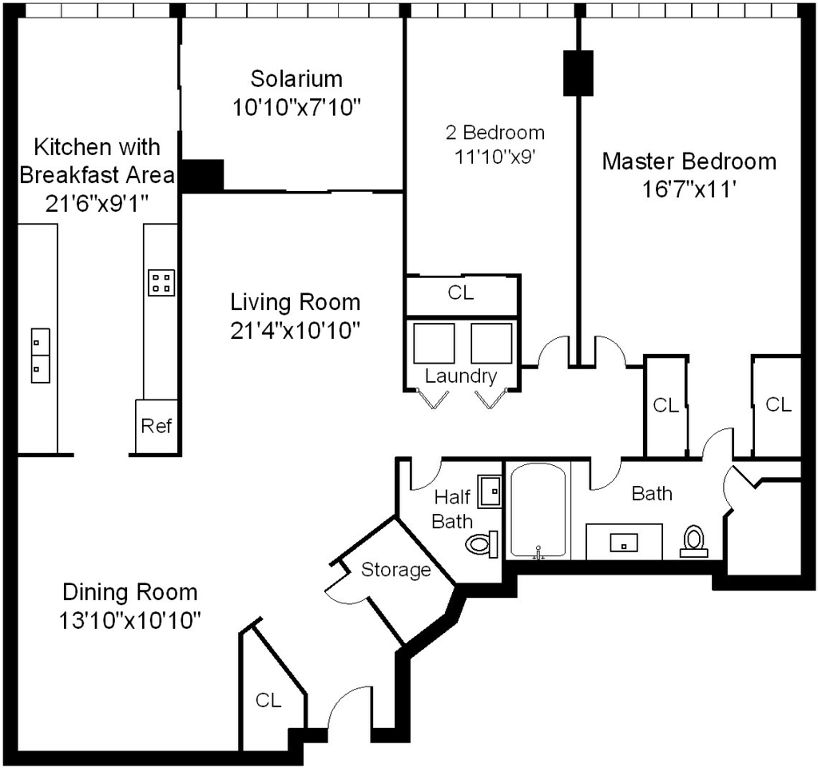
Barclay Terrace is the ultimate in comfort and luxury in Etobicoke. The buildings at the corner of Islington and Dundas in Islington Village offer residents many conveniences. Twenty-four hour concierge and security ensure residences safety. The building boasts a large pool, hot tub, whirlpool, sauna, squash courts, hospitality room and much more. Enter unit 403 through the roomy foyer with its marble tile floor and two storage closets. The entryway flows nicely into the main living space. The unit has carpeting throughout except for the washrooms and kitchen, which are tiled. To the right of the foyer is the large dining room perfect for large family meals. This leads to the long galley style eat-in kitchen. To the left of the entryway is the living room, which leads to a solarium complete with sliding glass doors that allow the light from the large bright windows to reach the principal rooms. The bedroom hallway features a two-piece powder room and a closet, which houses the ensuite washer and dryer with shelf above for storage. The master bedroom with its large bright east-facing window is a wonderful space for relaxing at the end of the day. With plenty of room to kick back in bed or sit in a chair by the window and read you will love the spacious room. The master bedroom also features his and her sliding door closets and a separate entrance to the main 4-piece washroom. With dual access points this washroom can be private for your use or opened up to guests. Whether you want a calming bubble bath or to start your day with a quick shower this washroom is perfect for all your grooming needs, especially with the large mirror. The second bedroom can be used for sleeping, a guestroom or den if you would like a quiet getaway.









